RIZALTA — новый инвестиционный проект от Жилищной инициативы
Заказать
звонок
8(3852) 505-313
Найти
квартиру
Найти
квартиру
Заказать
звонок
Компания
Контакты
События
ЖИзнь
Как купить?
Найти квартиру
8(3852) 505-313
Компания
Контакты
События
ЖИзнь
Как купить?
Найти квартиру
8(3852) 505-313
/
Заказать звонок
Квартиры
Коммерческая
недвижимость
Паркинги
и гаражи
Специальные
предложения
Жилищная инициатива
ул. Промышленная, 6
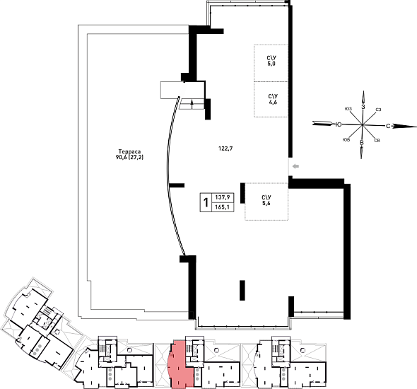
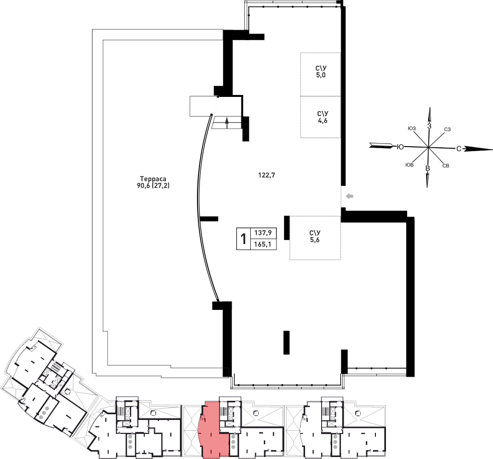
Квартира №355
В сравнении
0
Родные берега
квартира №355
Планировка
на этаже
с мебелью
визуализация
Планировка
Расположение на этаже
План с мебелью
Визуализация
131.2 м²
Площадь
157.7 м²
Общая площадь
24/25
Этаж
1
комната
2
Подъезд
Продано
Статус
Панорамные фото
✖